top of page

MENLO PARK - US

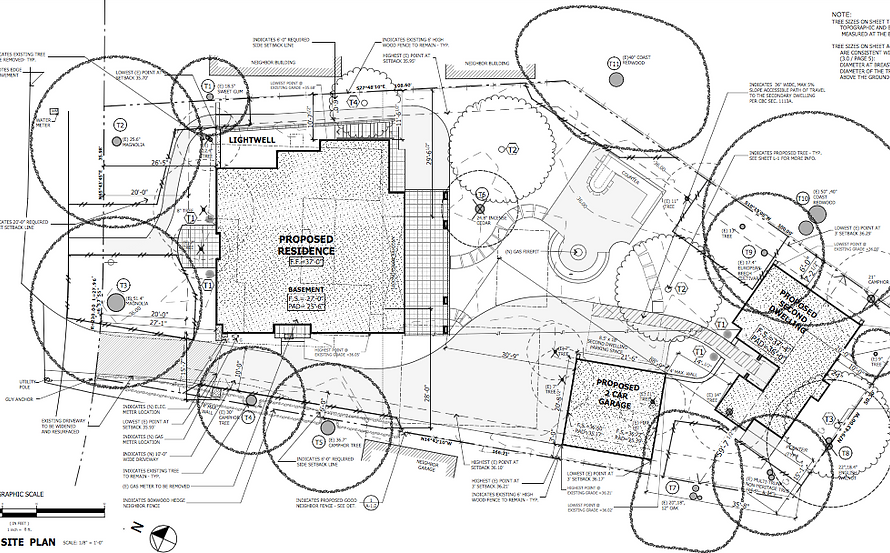
445 OAK COURT

09   /   01   /   2020

Elegant Suburban Residence in the exclusive neighborhood of Menlo Park, California

​

Site Location Size: 13,600 sqft

Primary Residence: 3,213 sqft

Basement: 1,693 sqft

Detached Garage: 446 sqft

Secondary Dwelling: 699 sqft

​

Building Permit In Process!

GET IN TOUCH:

CONTACT US:

Tel: 650-924-1450

Email: info@aeradd.com

Palo Alto, California, USA

Hồ Chí Minh City, Vietnam

​

Success! Message received.

© 2023 by Aera Design & Development.

bottom of page